top of page
Home
Listings
Home Gallery
Price Quote
Financing
Refer a Friend $500
Phone
Price Quote
Access Home | Access Affordable Factory Built Family Homes
Rental Application
Sonic
< Back
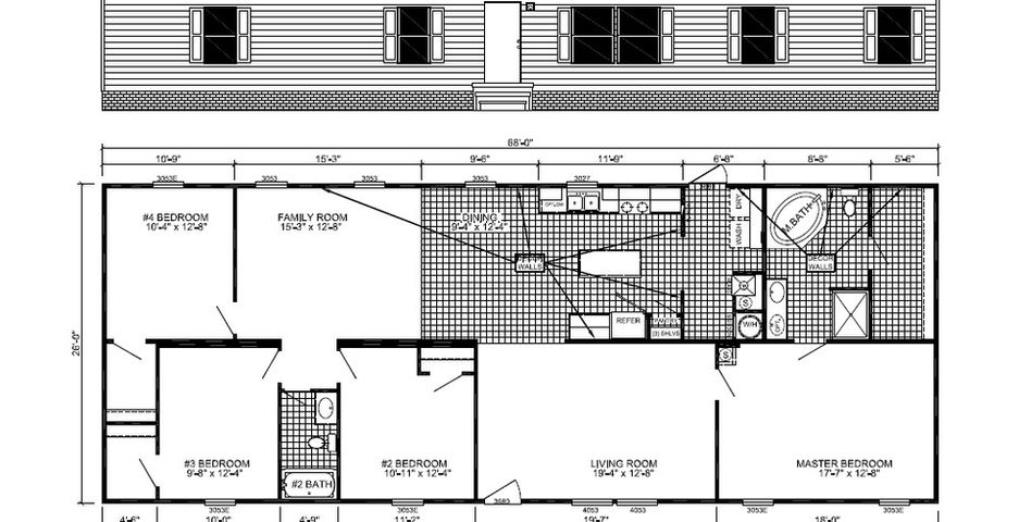
4 Bed, 2 Bath / 1768 sq ft / 28x72
Runner Series
Previous
Next
Standard Specs
Brochure and Color Selections
Option Choices
bottom of page